

New house & land package by Cunic Homes, located in picturesque and tranquil suburb of Mount Nelson. Being on a large, 1084m2 block, this package will provide plenty of space for your family home or investment property.
Customise your new build and be positioned close to schools and public transport. With Hobart CBD just a short 7km commute, making access to all amenities Hobart has to offer.
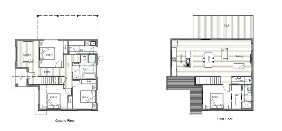
Comprising 4-bedrooms or second living, 2-bathrooms, this new house & land package by Cunic Homes is ready for you to call home.
Titles expected late 2025.