

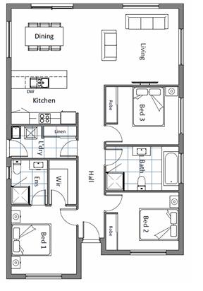
Situated within the brand new Norfolk Park off Dixon Street in New Norfolk, this house & land package by Cunic Homes is perfect for families, first home buyers, and investors. Titles due in end of 2024.
This new contemporary family home sits in an elevated position overlooking the picturesque town of New Norfolk, just a 35-minute drive to Hobart CBD. Nearby you will find Tynwald Park walking tracks, services, supermarket, doctors, cafes, and historic buildings all within a short stroll or 2-minute drive. Myhome Scheme package available.