


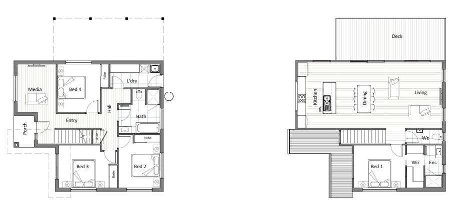
Louisville Road, Orford offers a relaxed coastal lifestyle just moments from stunning beaches, local shops, and cafes. Located in a peaceful seaside community, it’s ideal for those seeking a holiday retreat, family home, or smart coastal investment.
This house makes a perfect first home, short stay accommodation or a place to settle down in retirement to soak in the stunning views.