

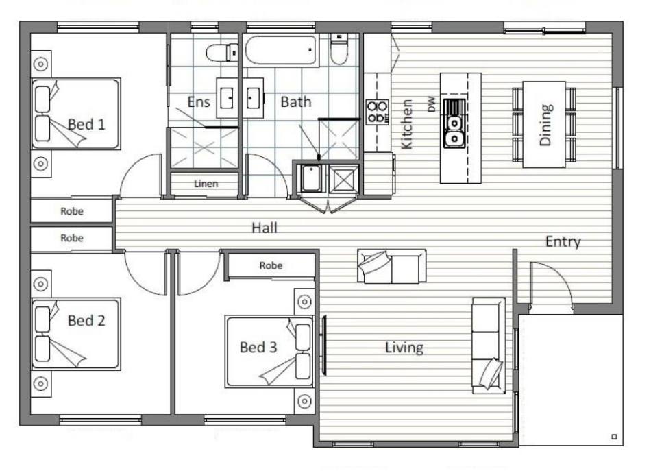
This thoughtfully designed home offers 3 spacious bedrooms, 2 stylish bathrooms, and a light-filled open-plan living area ideal for everyday comfort. Set on a low-maintenance block, it’s perfect for first home buyers, downsizers, or savvy investors.
Located just 12 minutes from Hobart, Risdon Vale offers a peaceful, community-focused lifestyle surrounded by natural bushland. Nestled in a quiet valley on the eastern shore, the area is known for its affordability, scenic surroundings, and easy access to the city via the East Derwent Highway.
Enquire today to make this affordable lifestyle yours!