


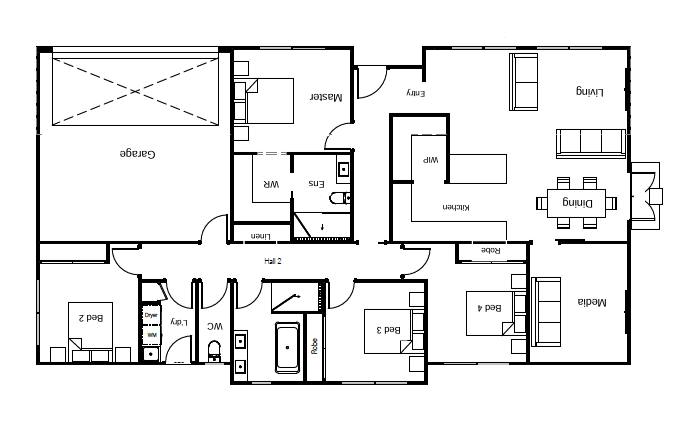
Family Home in desirable location
Titled land, ready to build — this is a fantastic opportunity for to secure your next family home site in a growing community.
The package Based on Cunic's Classic inclusions, the home features products from top brands and suppliers from Tasmania and Australia. With the option to customise the design and select finishes to truly make this package your own, you will be guided through your selections process at Cunic's in-house selection studio by Cunic's qualified Interior Designer.