


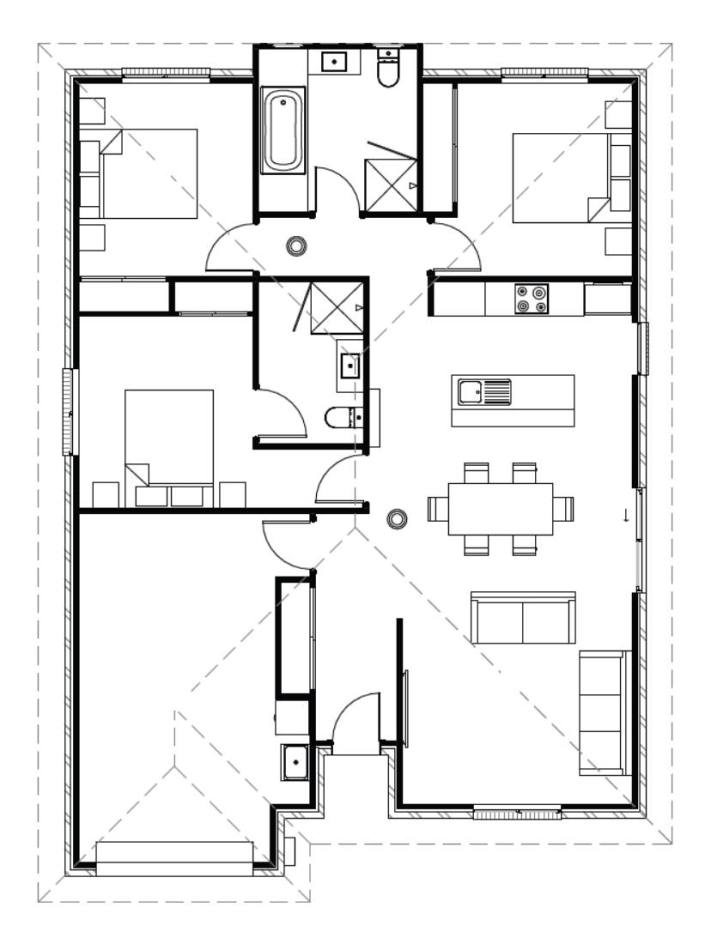
Discover modern, low-maintenance living with this well-designed house and land package in Risdon Vale. Featuring 3 bedrooms, 2 bathrooms, and a single garage, this home offers a practical layout with contemporary finishes, perfect for first home buyers, families, or investors. Conveniently located close to local schools, shops, and just a short drive to Hobart, this is a fantastic opportunity to secure a quality home.