


Back River Road in Magra is a quiet rural-residential area just outside New Norfolk, known for its peaceful country setting, larger blocks and leafy surroundings. It suits those looking for a relaxed lifestyle with privacy and a strong connection to nature, while still being within about 30 minutes of Hobart by car.
New Norfolk is only a short drive away and provides supermarkets, cafés, medical services and a range of primary and secondary schools. This makes the area convenient for daily needs while maintaining a calm, semi-rural feel.
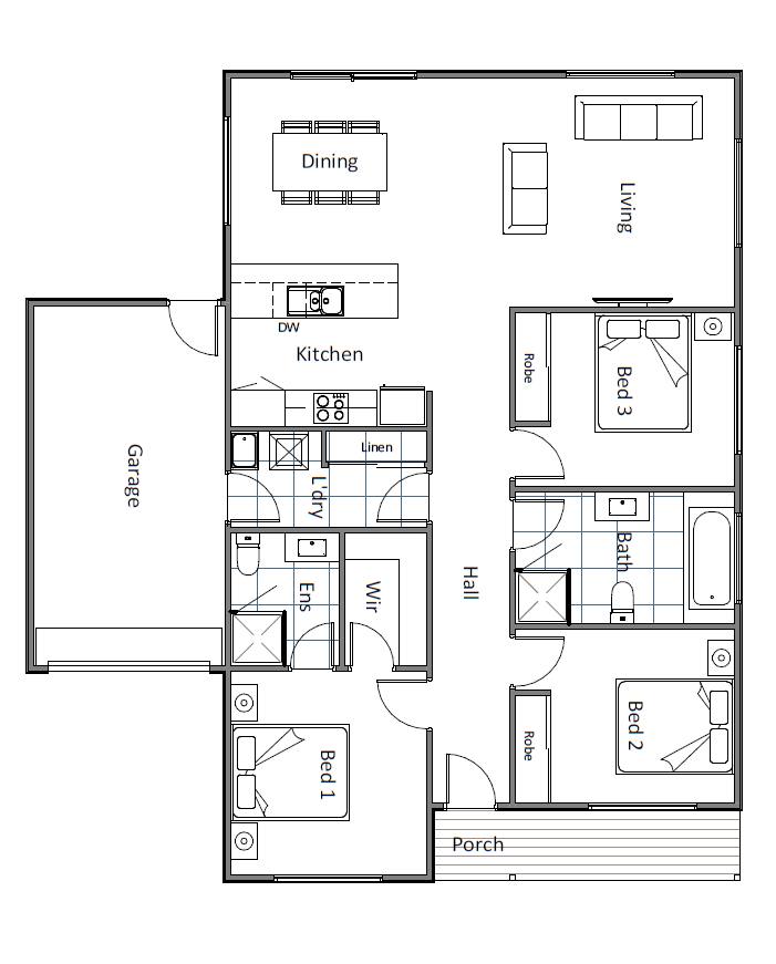
Our house and land packages offer investors a smart, low-risk way to build long-term wealth, combining fixed-price construction with land in high-growth locations. Designed for strong rental demand and future capital growth, each package features modern, low-maintenance homes that appeal to quality tenants while maximizing depreciation and cash flow. With turnkey solutions, reputable builders, and carefully selected locations near key infrastructure, these packages provide a simple, stress-free investment option for both new and experienced property investors, avoid buyer agent fees and deal directly with a builder.