


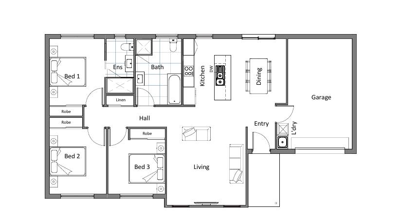
Family Home in desirable location Titled land, ready to build — this is a fantastic opportunity for to secure your next family home site in a growing community. • 3 Bedrooms | 2 Bathrooms | 1 Car Garage • Family-friendly suburb with a strong sense of community and lifestyle appeal • Located in a high-growth, highly desirable area
The package Based on Cunic's Classic inclusions, the home features products from top brands and suppliers from Tasmania and Australia. With the option to customise the design and select finishes to truly make this package your own, you will be guided through your selections process at Cunic's in-house selection studio by Cunic's qualified Interior Designer. Pricing is based on "M" class soil, BAL LOW rating, with a maximum site fall of 1400mm. Individual legal contracts apply for both the purchase of the land and construction of the home, and price is not inclusive of stamp duty or other legal or statutory fees relating to the purchase of the land.