


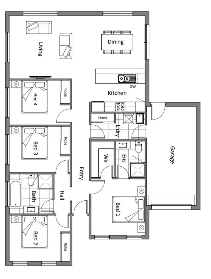
This modern four-bedroom, two-bathroom home offers the perfect combination of comfort, space, and modern living. The thoughtfully designed floor plan ensures open-plan living and dining areas that flow seamlessly to the outdoor entertaining space, ideal for growing families or first-home buyers looking for exceptional value.
Located just 15 minutes from Hobart’s CBD, Risdon Vale offers an appealing mix of suburban tranquillity and convenient proximity to city amenities. The area is popular for its family-friendly community, affordable land, and natural surroundings.
With its combination of modern design, generous inclusions, and a peaceful yet connected location, this house and land package at 62 Sugarloaf Road, Risdon Vale is an ideal opportunity to secure your dream home in a growing area.