


Roadknight Court is a peaceful residential street in New Norfolk, Tasmania, situated within a modern housing subdivision. It offers convenient access to local schools, shops, and everyday amenities while still maintaining the quiet, semi-rural atmosphere characteristic of the Derwent Valley. Located around 30 minutes from Hobart, the court features contemporary homes in a family-friendly community surrounded by scenic hills and the Derwent River—an ideal setting for young families.
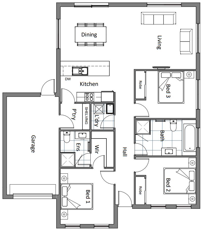
Experience the perfect combination of style, comfort, and value with this exceptional new home opportunity at Lot 20, 18 Roadknight Court, New Norfolk. This contemporary residence is part of a complete house and land package built to high standards. Featuring three generous bedrooms, two beautifully designed bathrooms, great for first home buyers or someone looking to invest.